展示室の貸出
米子市美術館では、市民のギャラリーとして
一般の方にも展示室をお貸ししています。
使用される方は、米子市内・市外 、 個人・団体を問いません。
営利を目的としない美術作品発表の場としてご利用ください。
- 展示室の使用期間は、原則として木曜日~火曜日(水曜日は休館)を1コマとします。
なお、作品の搬入・搬出もこの期間に含みます。 - 展示室をご利用の際は、必ず「米子市美術館 展示室使用の手引き」をお読みください。
*2025年11月に更新しました。
展示室の予約について
令和7年度の展示室の空室状況(利用可能期間)につきましては、直接米子市美術館へお問い合わせください。
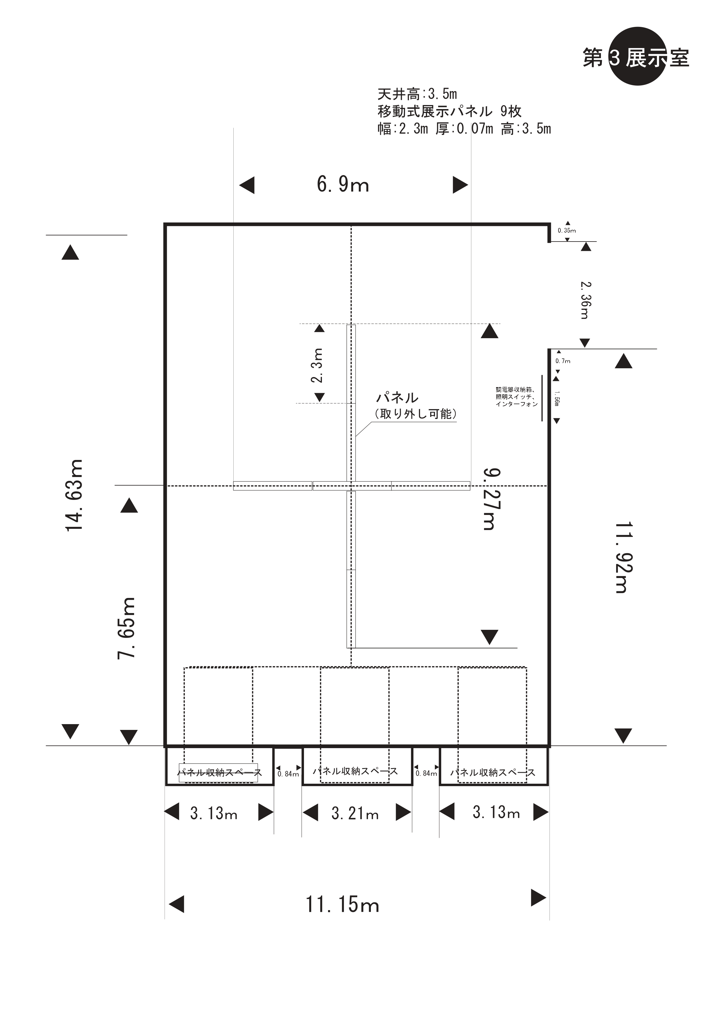
館内見取り図

展示室面積および壁面延長
| 室 名 | 展示面積 | 壁面延長 | パネル延長 | 天井高 | 平面図 |
|---|---|---|---|---|---|
| 第1展示室 | 173.15m2 | 50.91m | 31.98m | 3.5m |
|
| 第2展示室 | 235.96(217.68)m2 | 60.82m | 51.9m | 3.5m |
|
| 第3展示室 | 163.12m2 | 48.85m | 41.44m | 3.5m |
|
| 第4展示室 | 326.69m2 | 78.46m | 83.22m | 4.0m |
|
| 第5展示室 | 75.08m2 | 33.48m | 0m | 3.45m |
|
| 合 計 | 974(955.72)m2 | 272.52m | 208.54m | --- |
- 壁面およびパネル延長合計481.06m
- パネルは取り外し可能
- 第2展示室ガラス展示ケース壁面延長21.51m
- ( )内は第2展示室ガラスケースを除く面積
展示室使用料(2019年10月1日改定)
| 第1展示室 | 5,240 (6,280) | ▼使用料の単位 1日(10時から18時までの8時間。使用期間が1日未満の場合は1日として計算。ただし準備または現状回復のために4時間以内で使用する場合は上記料金の半額。) 上記に定める(10時~18時)外に延長使用する際には、別途延長使用料が必要です。(事前申請のうえ許可を得てください。) |
|---|---|---|
| 第2展示室 | 7,860 (9,430) | |
| 第3展示室 | 5,240 (6,280) | |
| 第4展示室 | 10,480 (12,570) | |
| 第5展示室 | 2,610 (3,130) |
※( )内は、冷暖房使用期間(6月15日〜9月15日・12月1日〜3月31日)の料金です。
申請書ダウンロード
ダウンロード補足
【ご注意】申請書ご記入前に必ずお電話にてご希望期間・展示室が仮予約可能かどうかお問い合わせください。
申請書をダウンロード後A4サイズの紙に印刷いただき、必要事項をご記入の上、
当館へ直接ご持参いただくか、郵送、メール添付またはファックスにて送信してください。送信後は念のため着信確認のお電話をお願いします。
*記入に不備がある場合は修正をお願いする場合があります。
送信先メールアドレス: art-museum@yonagobunka.net FAX:0859-33-0679
お問い合わせ先
ご不明な点については、下記担当へお問い合わせください。
米子市美術館 貸館担当
〒683-0822 鳥取県米子市中町12番地
電話:0859-34-2424 ファックス:0859-33-0679
メールアドレス:art-museum@yonagobunka.net